谁规定老破小就得凑活过?
现在好多人盯着大平层、叠墅,觉得面积大就是“高级”,可真住进去才发现——那些堆出来的“精致”,不如一扇能直接推到院子的门实在。

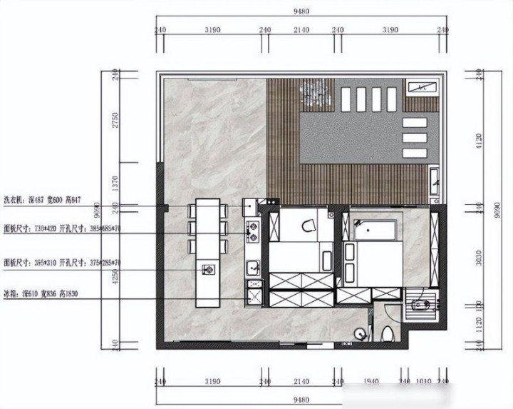
一楼带个小院子有多香?
不用爬楼梯,推开门就能踩着防腐木檐廊,下雨的时候听雨水打在砂砾上的滴答声,比听楼上高跟鞋踩地板的声音舒服一百倍。

院子不用摆满昂贵盆栽,几盆耐活的绿植、一堆粗粝的砂砾、一尊普普通通的佛像,反而有股说不出的静气——坐在这里发发呆,比去别墅花园摆拍更能沉下心。
客厅不做沙发茶几电视那套又怎么了?

L型书墙一面放书一面摆收藏,比冷冰冰的电视墙有温度多了。
现在谁手机里没有几个视频APP?

可真要是想静下来,还是摸一本纸质书踏实——排列整齐的书脊既是装饰,也是日子的底气,你说这种“把喜欢的东西摊开”的设计,能不比堆个大沙发更懂生活?
开放式餐厨的岛台太绝了!

做饭的时候能和家人唠两句,端菜不用绕远路,洄游动线走起来比大平层的“分区明确”顺一百倍。橱柜和收纳柜做成一体,透明玻璃吊柜能看见里面的厨具,找个碗都不用翻箱倒柜——这种“藏得住乱、露得出巧”的设计,才是真正用惯了厨房的人能想出来的。
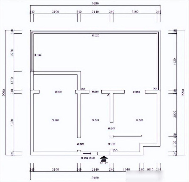
卫生间两面开门的细节简直戳中痛点!

早上不用抢着从卧室跑客厅进厕所,从厅里或者房间都能进,赶时间的时候多省事儿?
分离式设计更不用说,洗脸刷牙和上厕所互不耽误,比大平层里“看着大但动线绕”的卫生间实用多了。

卧室的原木风太让人放松了——墙面不贴壁纸不做造型,无主灯设计让空间显大,低矮的榻榻米躺着比高床踏实,低饱和度窗帘一拉,连梦都是软的。
次卧做榻榻米收纳,客人来了能住,平时放换季衣服,比打个占地方的大衣柜聪明多了——毕竟老破小的每一寸空间,都得“站着有用、躺着舒服”。

你说这房子才50平,怎么就装出别墅的感觉?
因为它没追着“大”跑,而是把每一处都贴紧了生活:院子是用来“呆着”的,不是用来“展示”的;客厅是用来“读书”的,不是用来“待客”的;厨房是用来“做饭聊天”的,不是用来“摆拍”的。

大平层再大,要是少了这种“把日子揉进细节里”的温度,能有什么意思?老破小怎么了?改对了,它装的是“想怎么活就怎么活”的底气,比那些“看着高级却用着硌得慌”的房子,香多了。








Powered by 真正能赚钱提现的游戏没有广告 @2013-2022 RSS地图 HTML地图